宽槽型振动给煤机简介
振动给煤机是一种集活化疏松物料功能和均匀定量给料功能于一体、为防止煤仓蓬煤、堵煤而设计的一种振动给料设备。振动给煤机用于把原煤及粉煤从贮料仓均匀或定量给到受料设备中。GZGKM宽槽型振动给煤机是选煤厂振动筛或跳汰机前给料的一种节能型给煤机。宽槽型振动给煤机特点及应用
GZGKM宽槽型振动给煤机由振动电机直接驱动、结构简单紧凑、便于窄小空间布置安装;给煤连续均匀,配用电控箱,可实现给煤量的任意调节。GZGKM宽槽型振动给煤机应用于煤炭、冶金、建材、化工、轻工等行业的筛前给料或者有布料要求的工艺中。

技术参数
| GZGKM-120 | GZGKM-160 | GZGKM-180 | GZGKM-200 | GZGKM-220 | GZGKM-280 | GZGKM-320 | ||
给料机宽度(mm) | 1200 | 1600 | 1800 | 2000 | 2200 | 2800 | 2300 | ||
给料粒度(mm) | 0-120 | 0-120 | 0-120 | 0-120 | 0-120 | 0-120 | 0-120 | ||
给料量(t/h) | 100-150 | 100-175 | 100-200 | 15-225 | 150-250 | 200-300 | 200-350 | ||
功率(kw) | 2×1.50 | 2×1.50 | 2×2.20 | 2×2.20 | 2×2.20 | 2×3.70 | 2×3.70 | ||
电机型号 | YZO-20-6 | YZO-20-6 | YZO-30-6 | YZO-30-6 | YZO-30-6 | YZO-50-6 | YZO-50-6 | ||
振频(Hz) | 16 | 16 | 16 | 16 | 16 | 16 | 16 | ||
振幅(mm) | 4-6 | 4-6 | 4-6 | 4-6 | 4-6 | 4-6 | 4-6 | ||
安装倾角 | 0°-10° | 0°-10° | 0°-10° | 0°-10° | 0°-10° | 0°-10° | 0°-10° | ||
总重(kg) | 800 | 920 | 1200 | 1370 | 1480 | 1800 | 1970 |
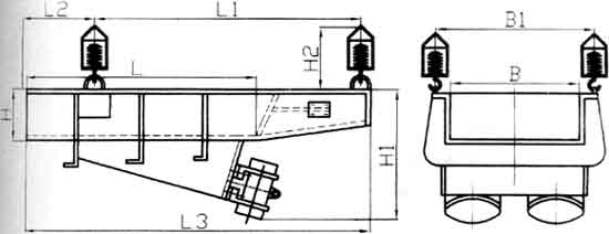
外形图:
外形尺寸(mm)
| GZGKM-120 | GZGKM-160 | GZGKM-180 | GZGKM-200 | GZGKM-220 | GZGKM-280 | GZGKM-320 | ||
B | 1200 | 1600 | 1800 | 2000 | 2200 | 2800 | 3200 | ||
B1 | 1250 | 1650 | 1850 | 2050 | 2250 | 2850 | 3250 | ||
H | 300 | 300 | 300 | 300 | 300 | 300 | 300 | ||
H1 | 900 | 900 | 950 | 950 | 950 | 1030 | 1030 | ||
H2 | -550 | -550 | -600 | -600 | -600 | -700 | -700 | ||
L | 1600 | 1600 | 1600 | 1600 | 1600 | 1600 | 1600 | ||
L1 | 1900 | 1900 | 1900 | 1850 | 1850 | 1850 | 1750 | ||
L2 | 250 | 250 | 250 | 300 | 300 | 300 | 400 | ||
L3 | 2200 | 2200 | 2200 | 2200 | 2200 | 2200 | 2200 |
苏公网安备 32062102000184号