
一、简介
ZG电磁振动给煤机用来将煤炭或其它散状物料从料仓或漏斗中均匀连续或定量地给到受料设备中去,如带式输送机斗,斗式机提升机,筛分设备,破碎机等。
ZG电磁振动给煤机配备电源控制箱,可以五级调节给料量,配量自动稳幅控制箱,可不受电源电压的波动而使机器振幅稳定,且噪音降低,寿命延长,可靠性提高,同时还可以与计算机实现联机,实现自动化智能给料。
二、重要技术参数
规格型号 | 生产率 t/h | zui大给料粒度 mm | 振动次数 次/分 | 整体重量 | 双振幅 mm | 配用电磁振动器 | 整机重量 kg | ||
规格 | 有功功率kW | 额定电流A | |||||||
ZG-20 | 20 | 75 | 3000 | AC220 | 1.75 | DZ3 | 0.2 | 3.8 | 266 |
ZG-50 | 50 | 100 | DZ4 | 0.45 | 7 | 497 | |||
ZG-100 | 100 | 150 | DZ5 | 0.65 | 10.6 | 898 | |||
ZG-200 | 200 | 200 | AC380 | 1.5 | DZ6 | 1.5 | 13.3 | 1750 | |
ZG-300 | 300 | 300 | DZ7 | 2.5 | 20 | 2300 | |||
三、结构与外形尺寸
(一)结构
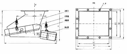
ZG电磁振动给煤机主要由电磁振动器,进煤斗、给料槽、落煤管、减振器等组成。
(二)ZG-20、ZG-50、ZG-100型结构尺寸图及参数

代号 | A×A | B×B | C×C | D1 | D2 | D3 | G | L | H | n1-Φ1 | n2-Φ2 | F1 | F2 | 减振器开档 | |
前 | 后 | ||||||||||||||
ZD-20 | 480 | 435 | 380 | Φ325 | Φ385 | Φ425 | 800 | 1470 | 900 | 12-14 | 12-14 | 535 | 310 | 518 | 518 |
ZD-50 | 595 | 540 | 480 | Φ426 | Φ490 | Φ528 | 1100 | 2000 | 1100 | 12-18 | 12-18 | 560 | 538 | 640 | 620 |
ZD-100 | 845 | 800 | 720 | Φ630 | Φ700 | Φ745 | 1250 | 2400 | 1415 | 16-18 | 16-18 | 470 | 580 | 930 | 750 |
(三)ZG200、ZG300型结构尺寸图及参数
代号 | A×A | B×B | C×C | D1 | D2 | D3 | G | L | H | n1-Φ1 | n2-Φ2 | F1 | F2 | 减振器开档 | |
前 | 后 | ||||||||||||||
ZD-20 | 480 | 435 | 380 | Φ325 | Φ385 | Φ425 | 800 | 1470 | 900 | 12-14 | 12-14 | 535 | 310 | 518 | 518 |
ZD-50 | 595 | 540 | 480 | Φ426 | Φ490 | Φ528 | 1100 | 2000 | 1100 | 12-18 | 12-18 | 560 | 538 | 640 | 620 |
ZD-100 | 845 | 800 | 720 | Φ630 | Φ700 | Φ745 | 1250 | 2400 | 1415 | 16-18 | 16-18 | 470 | 580 | 930 | 750 |
四、安装及调试
安装步骤
1、进煤斗上口法兰与原煤斗的出口法兰用螺栓连接,可在两法兰中间加装胶皮垫;
2、安装减振器及给煤机主机;
3、落煤管上法兰与进煤斗的下法兰用螺栓连接,可在两法兰中间加装胶皮垫;
4、煤管的下法兰与磨煤机的进口法兰用螺栓连接,如有高度差,或口径不一致,可加装溜管过渡;
5、调节前后减振器使给煤槽与进煤斗和落煤管成均匀间隙,间隙大小一般为20-30mm,不允许与其它部件相碰。并保证給煤槽呈水平状态,如需要增大煤量,可使给料槽向下倾斜0-10度。



苏公网安备 32062102000184号