自定中心振动筛产品标准
自定中心振动筛用途及特点
??SZZ型自定中心振动筛运动轨迹为圆,全系列共有十种规格,可供煤炭、冶金、建材、化工等部门,对中小粒度的物料进行干式分级。筛机结构简单,坚固可靠,维修方便,效率高。
选用须知
??——筛机分单层和双层,除了SZZ1800×3600振动筛外都为吊式。??——筛网结构有编织网和冲孔筛板。
??——电动机可安装在左侧或右侧,无特殊要求按安装图安装。
??——电动机额定电压为380V,可选用防爆电机或不同额定电压的电机,如选用请在订货时注明。
??——基础螺栓由用户自备。
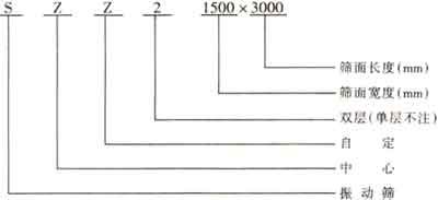
产品型号表示示例:

技术参数
型号 | 筛 面 | 给料粒度( mm ) | 处理量( t/h ) | 电动机 | 外形尺寸 长×宽×高 | 总重(kg) | |||||
层数 | 面积(m2) | 倾角( °) | 筛孔尺寸( mm ) | 结构 | 型号 | 功率(kw) | |||||
SZZ800×1600 | 1 | 1.3 | 15 | 3-40 | 编织 | ≤100 | 8-45 | Y100L1-4 | 2.2 | 2167×1653×1110 | 498 |
SZZ2800×1600 | 2 | 1.3 | 15 | 3-40 | 编织 | ≤100 | 8-45 | Y100L2-4 | 3 | 1935×1678×1345 | 822 |
SZZ1250×2500 | 1 | 3.1 | 15 | 6-40 | 编织 | ≤100 | 36-106 | Y132S-4 | 5.5 | 2569×2110×1006 | 1021 |
SZZ21250×2500 | 2 | 3.1 | 15 | 6-50 | 编织 | ≤150 | 36-117 | Y132M2-6 | 5.5 | 2635×2376×1873 | 1260 |
SZZ21250×4000 | 2 | 5 | 15 | 6-50 | 编织 | ≤150 | 58-188 | Y132M-4 | 7.5 | 4184×2468×3146 | 2500 |
SZZ1500×3000 | 1 | 4.5 | 20 | 6-50 | 编织 | ≤150 | 52-170 | Y132M-4 | 7.5 | 2866×2342×1650 | 2234 |
SZZ1500×4000 | 1 | 6 | 20 | 6-50 | 编织 | ≤150 | 70-227 | Y132M-4 | 7.5 | 3951×2386×2179 | 2582 |
SZZ21500×3000 | 2 | 4.5 | 15 | 6-50 | 编织 | ≤150 | 52-170 | Y132M-4 | 7.5 | 3050×2524×1855 | 2511 |
SZZ21500×4000 | 2 | 6 | 20 | 6-50 | 编织或冲孔 | ≤150 | 70-227 | Y132M-4 | 7.5 | 4155×2754×2656 | 4022 |
SZZ1800×3600 | 1 | 6.48 | 25 | 6-50 | 编织或冲孔 | ≤150 | 76-245 | Y180M-4 | 18.5 | 3750×3060×2541 | 4626 |
六、安装尺寸:
| L | L1 | L2 | L3 | L4 | H | H1 | H2 | H3 | H4 | B | B1 | B2 | B3 | B4 | ||
SZZ800×1600 | 1990 | 1352 | 616 | 676 | 620 | 1110 | 620 | 700 | 25 | 145 | 1328 | 800 | 868 | 1042 | 140 | ||
SZZ2800×1600 | 1743 | 1217 | 284 | 608 | 460 | 1345 | 830 | 765 | 25 | 145 | 1328 | 800 | 888 | 1042 | 140 |