
电动锁气翻板卸灰阀概述
DSF电动锁气翻板卸灰阀普遍适用于建材、冶金、石化、电力等行业。作为各类除尘设备的灰斗锁气卸灰装置,及各种磨机、烘干机、料仓、筒库和闭式输送系统等的锁气、卸灰装置。电动锁气翻板卸灰阀结构特点
DSF电动锁气翻板卸灰阀为凸输、连杆传动,弹簧自动复位机械。具有结构紧凑、设计合理、运行平稳,卸灰、锁气可靠。且兼有间歇喂料和控制输料斗功能,是各种给、卸料工况的理想设备。
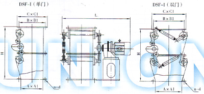
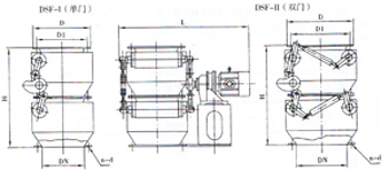
外形安装尺寸
1、方口形外形图
2、圆口形外形图
南通联源机电科技股份有限公司
? 2022 南通联源机电科技股份有限公司
苏公网安备 32062102000184号
备案号: 苏ICP备15030594号-1
技术支持: 天正企划